Geschiedenis:
Op 2 augustus van het jaar 1897 werd te Rotterdam door C. Bruynzeel Junior de firma C. Bruynzeel & Zonen gesticht, waar deuren, kozijnen, ramen, betimmeringen en parketvloeren zouden worden vervaardigd. In 1920 komt Bruynzeel ook naar Zaandam. Door de directie werden zware eisen gesteld aan de nieuw te bouwen hallen, zoals grote brandveiligheid, hoge vloerbelastingen, onbelemmerde opslagruimte en zo weinig mogelijk kolommen in de ruimten. De gebouwen en de functies (de fabrieken van ‘Bruynzeel’) zijn sindsdien onlosmakelijk verbonden met de geschiedenis van de Zaanstreek. Het Multipanel gebouw was een van deze gebouwen.
Functie:
Bedrijventerrein Zuiderhout ontwikkelt zich tot een hoogwaardig gemengd gebied, dat een belangrijke bijdrage levert aan de economische vitaliteit en diversiteit van de Kanaalzone. Door de ontwikkelingen rondom het ‘Bruynzeelplein’ en de komst van IKEA zal een nieuwe aansluiting ontstaan van het terrein op de naastgelegen ‘Woonboulevard Zaandam’. Dit winkelgebied bevindt zich, onder andere met de volledig restaureerde voormalige Bruynzeel gebouwen -‘Loods 5’ en ‘Loods 6’- aan de tegenovergelegen zijde van de Pieter Ghijsenlaan. Hoewel er met‘Loods 5’ al een winkelconcept is dat bezoekers uit heel Nederland naar het gebied trekt, zal door de komst van IKEA als grote publiekstrekker ook voor dit winkelgebied een nieuw perspectief ontstaan.
Over het project:
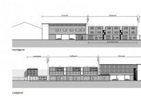
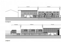
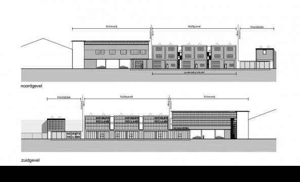
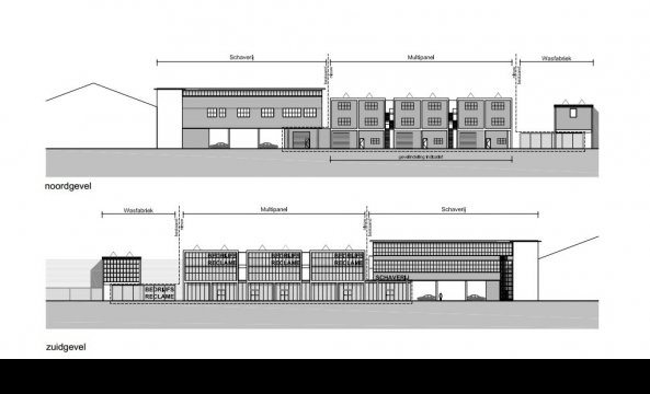
Het oorspronkelijke ‘Multipanel gebouw’ is geruime tijd geleden gesloopt. Op deze prominente plek aan het ‘Bruynzeelplein’ zal nu in een nieuwe vorm een 3-laags gebouw als historische nieuwbouw worden gerealiseerd met een totaal vloeroppervlakte van ca. 2.500 m² BVO. De stedenbouwkundige hoofdopzet voor dit nieuwe ‘Multipanel gebouw’ is een opdeling in drie volumes van de bovenbouw met doorgaande onderbouw.
Ontwikkeling/opdrachtgever:
Converse DC





