Opdrachtgever: IDorganics
Architect: Michel Post Architecten
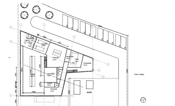
Project: Nieuwbouw voor IDorganics
IDorganics is gespecialiseerd in biologische bulk food en bulkverkoopsystemen in Europa. Voor de bouw van een nieuw bedrijfspand, waar productie en verkoop elkaar op natuurlijke wijze treffen, was de juiste uitstraling van groot belang. Deze uitstraling zie je terug in het gebruik van natuurlijke materialen en een zakelijkheid passend bij de grootte van de organisatie en de producten (bulkgoederen).
download pdf
